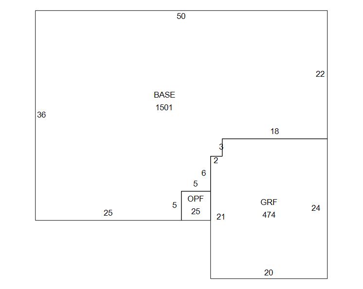
Seminole County Property Appraiser


622 STANFORD DR ALTAMONTE SPRINGS, FL 32714
ALLEN, PARKER; STEEL, MICHAELA J
2026 Market $311,247 Assessed $311,247 Taxable $259,836
2025 Tax Bill $3,604.58 Tax Savings with Exemptions $653.28

Copyright 2026 © Seminole County Property Appraiser | Privacy Statement | Accessibility/Terms of Use | Translate

Follow us on our socials