Seminole County Property Appraiser


415 BARRYWOOD LN CASSELBERRY, FL 32707
WEAVER, RUSSELL L; WEAVER, CARMEN A
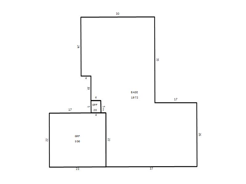
2026 Market $344,203 Assessed $166,924 Taxable $110,513
2025 Tax Bill $1,596.12 Tax Savings with Exemptions $3,220.80

Copyright 2026 © Seminole County Property Appraiser | Privacy Statement | Accessibility/Terms of Use | Translate

Follow us on our socials