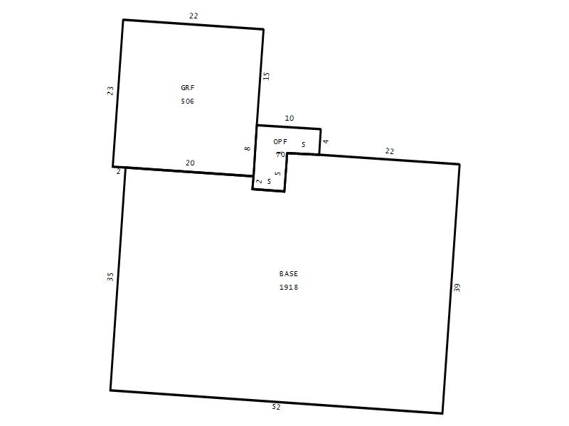
Seminole County Property Appraiser


203 RINGWOOD DR WINTER SPRINGS, FL 32708
HARDISON, MIKEL A; HARDISON, EMILY O
2026 Market $371,235 Assessed $192,687 Taxable $141,276
2025 Tax Bill $2,007.66 Tax Savings with Exemptions $3,132.50

Copyright 2026 © Seminole County Property Appraiser | Privacy Statement | Accessibility/Terms of Use | Translate

Follow us on our socials