Seminole County Property Appraiser


327 GOOSECREEK DR WINTER SPRINGS, FL 32708
BOGUMIL MICHELE A IRREVOCABLE TRUST; DIBARI DAWN SPECIAL NEEDS TRUST
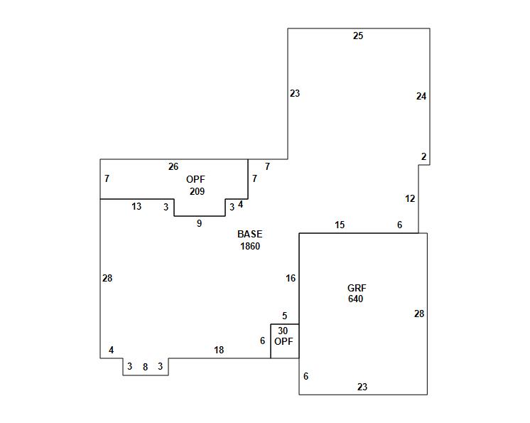
2026 Market $376,994 Assessed $376,994 Taxable $376,994
2025 Tax Bill $5,080.71 Tax Savings with Non-Hx Cap $133.83

Copyright 2026 © Seminole County Property Appraiser | Privacy Statement | Accessibility/Terms of Use | Translate

Follow us on our socials