Seminole County Property Appraiser


1203 WOLVERINE TRL WINTER SPRINGS, FL 32708
HERNANDEZ, EDWARD S JR ENH LIFE EST; HERNANDEZ, ANN L ENH LIFE EST
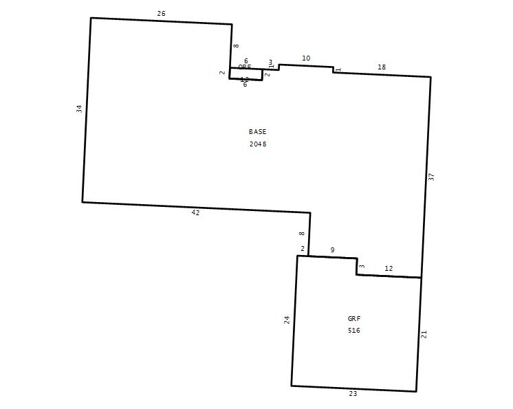
2026 Market $400,951 Assessed $181,733 Taxable $0
2025 Tax Bill $0.00 Tax Savings with Exemptions $6,442.98

Copyright 2026 © Seminole County Property Appraiser | Privacy Statement | Accessibility/Terms of Use | Translate

Follow us on our socials