Seminole County Property Appraiser


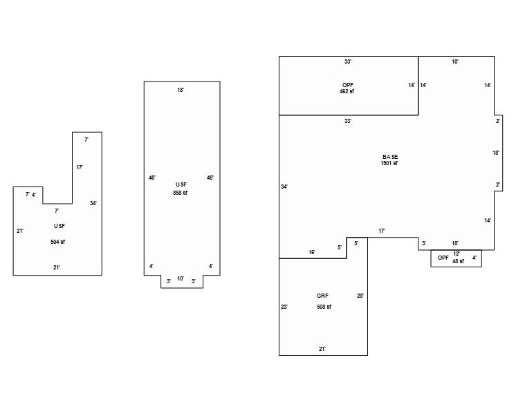
724 FLORIDA BLVD ALTAMONTE SPRINGS, FL 32701
SGROI, MARIO
2026 Market $684,494 Assessed $530,285 Taxable $478,874
2025 Tax Bill $8,315.20 Tax Savings with Exemptions $3,773.76

Copyright 2026 © Seminole County Property Appraiser | Privacy Statement | Accessibility/Terms of Use | Translate

Follow us on our socials