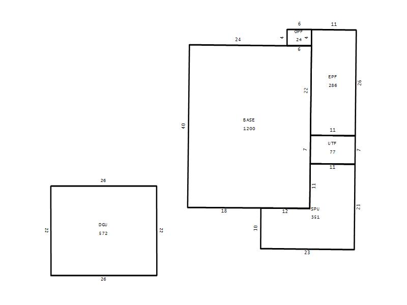
Seminole County Property Appraiser


970 BLACKWOOD ST ALTAMONTE SPRINGS, FL 32701
MIHELIC, VICTORIA C ENH LIFE EST
2026 Market $256,994 Assessed $130,186 Taxable $78,775
2025 Tax Bill $1,175.18 Tax Savings with Exemptions $2,361.66

Copyright 2026 © Seminole County Property Appraiser | Privacy Statement | Accessibility/Terms of Use | Translate

Follow us on our socials