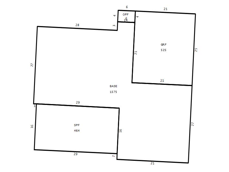
Seminole County Property Appraiser


1740 CINNAMON CIR CASSELBERRY, FL 32707
FOLEY, TIMOTHY; FOLEY, SARAH B
2026 Market $336,307 Assessed $222,739 Taxable $171,328
2025 Tax Bill $2,407.93 Tax Savings with Exemptions $2,215.61

Copyright 2026 © Seminole County Property Appraiser | Privacy Statement | Accessibility/Terms of Use | Translate

Follow us on our socials