Seminole County Property Appraiser


544 OLYMPIC VLG # 101 ALTAMONTE SPRINGS, FL 32714
LOPEZ, EDGARDO L
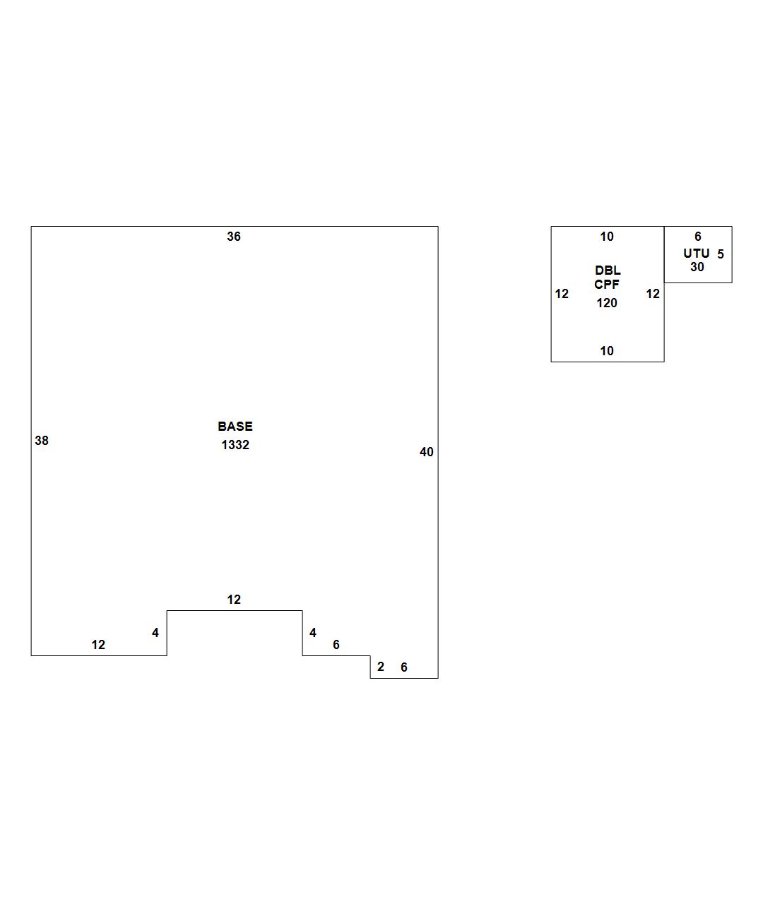
2026 Market $136,400 Assessed $41,828 Taxable $16,828
2025 Tax Bill $276.31 Tax Savings with Exemptions $2,407.56

Copyright 2026 © Seminole County Property Appraiser | Privacy Statement | Accessibility/Terms of Use | Translate

Follow us on our socials