Seminole County Property Appraiser


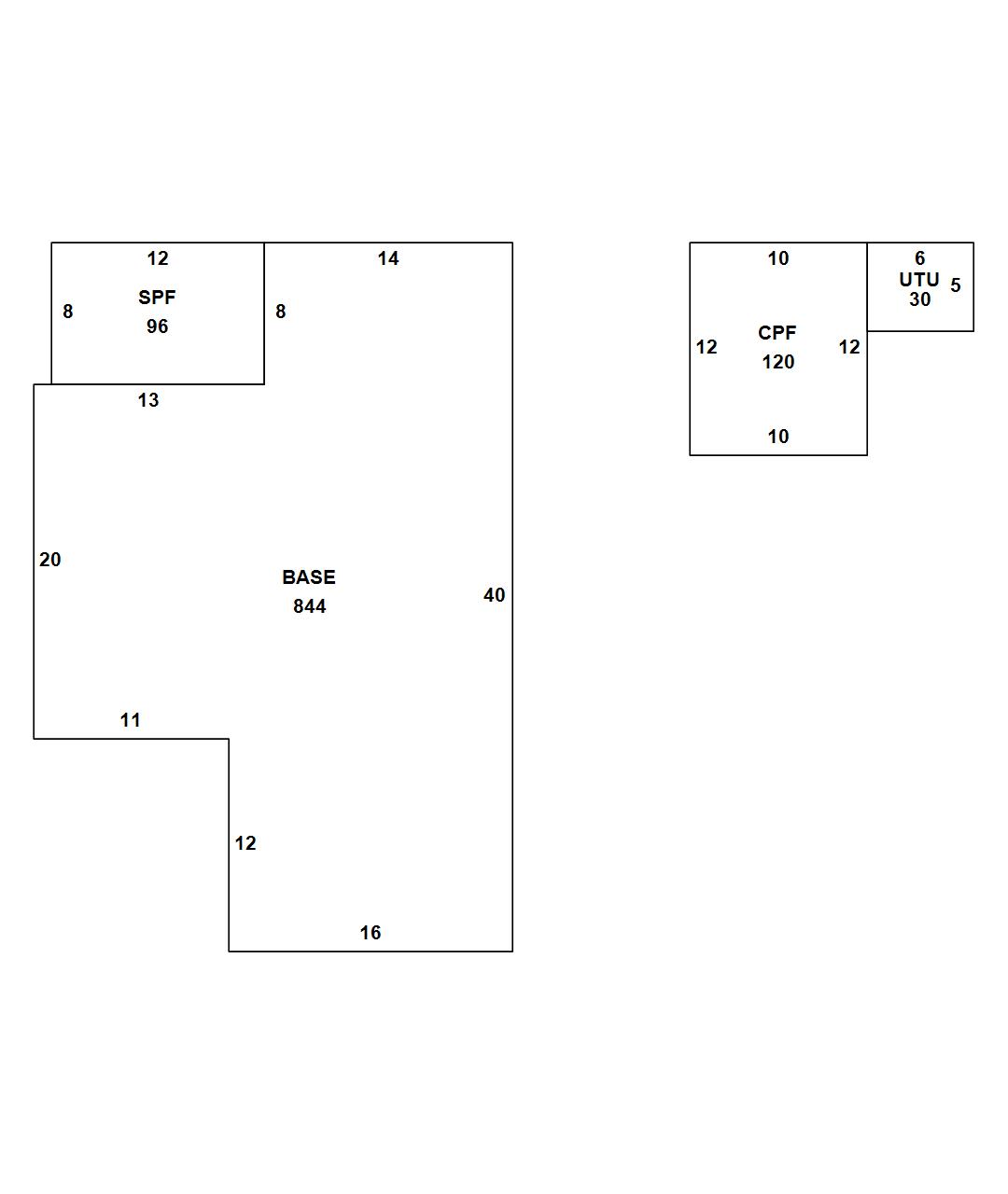
532 SUN VALLEY VLG # 102 ALTAMONTE SPRINGS, FL 32714
534 SUN VALLEY VILLAGE LLC
2026 Market $95,400 Assessed $95,400 Taxable $95,400
2025 Tax Bill $1,960.62

Copyright 2026 © Seminole County Property Appraiser | Privacy Statement | Accessibility/Terms of Use | Translate

Follow us on our socials