Seminole County Property Appraiser


528 SUN VALLEY VLG # 209 ALTAMONTE SPRINGS, FL 32714
534 SUN VALLEY VILLAGE LLC
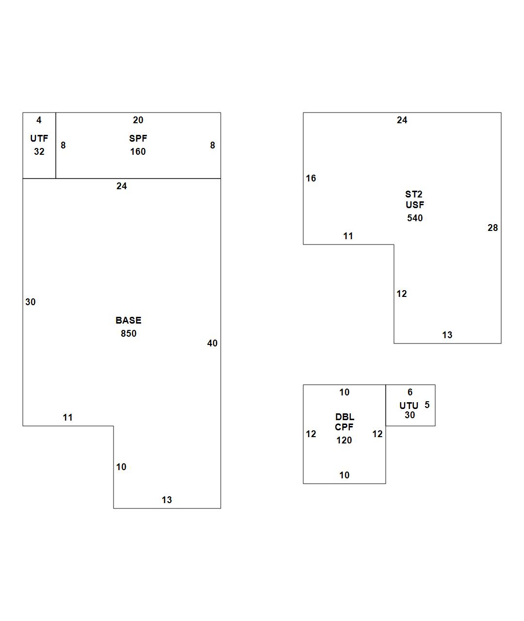
2026 Market $147,300 Assessed $147,300 Taxable $147,300
2025 Tax Bill $2,458.42

Copyright 2026 © Seminole County Property Appraiser | Privacy Statement | Accessibility/Terms of Use | Translate

Follow us on our socials