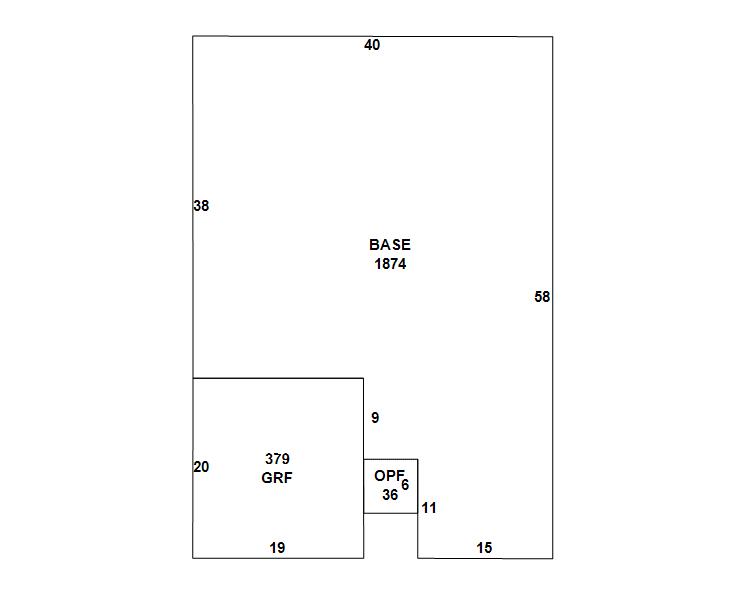
Seminole County Property Appraiser


145 PINE ISLE DR SANFORD, FL 32773
GRAJALES, JOSE A
2026 Market $324,766 Assessed $324,766 Taxable $324,766
2025 Tax Bill $5,912.34

Copyright 2026 © Seminole County Property Appraiser | Privacy Statement | Accessibility/Terms of Use | Translate

Follow us on our socials