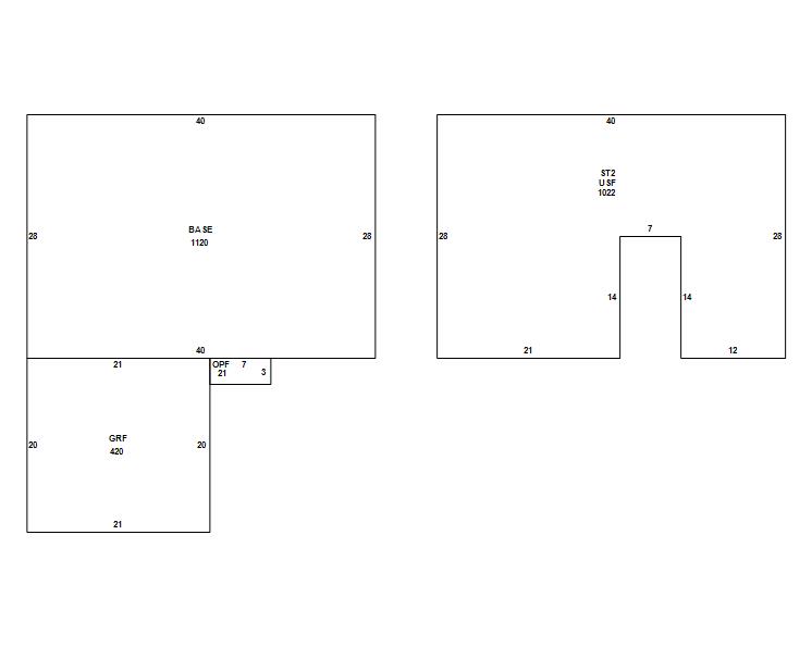
Seminole County Property Appraiser


132 OAK VIEW PL SANFORD, FL 32773
CHEN, CHAO Q; LIN, MU J
2026 Market $349,718 Assessed $182,826 Taxable $131,415
2025 Tax Bill $2,442.71 Tax Savings with Exemptions $3,911.58

Copyright 2026 © Seminole County Property Appraiser | Privacy Statement | Accessibility/Terms of Use | Translate

Follow us on our socials