Seminole County Property Appraiser


100 WOODFIELD CT SANFORD, FL 32773
CLAUDIA PALACIN, FRANCISCO J; RAMOS SANCHEZ, RUTH M
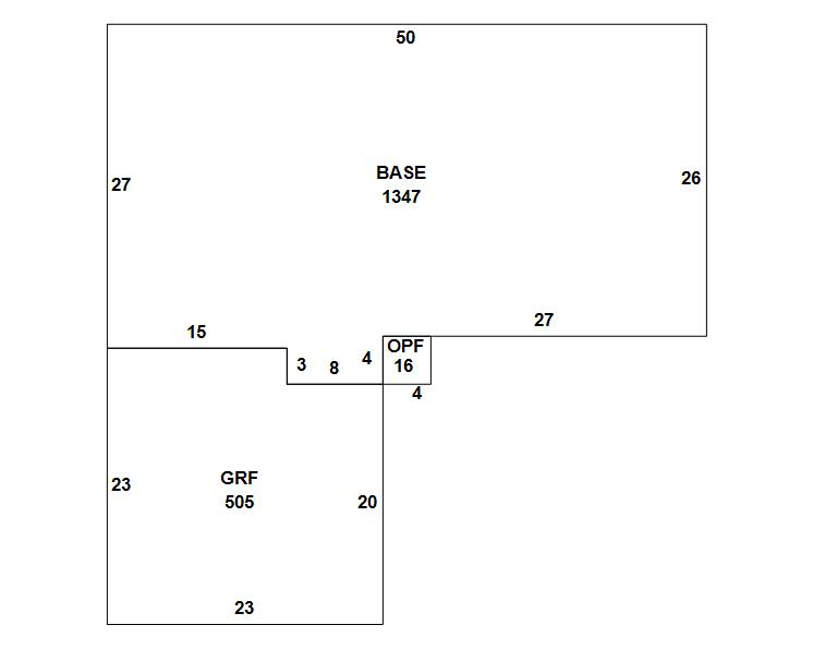
2026 Market $278,428 Assessed $278,428 Taxable $278,428
2025 Tax Bill $941.78 Tax Savings with Exemptions $3,929.57

Copyright 2026 © Seminole County Property Appraiser | Privacy Statement | Accessibility/Terms of Use | Translate

Follow us on our socials