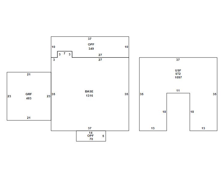
Seminole County Property Appraiser


1706 DAVENPORT CT WINTER SPRINGS, FL 32708
GRODEN, BRAD F; GRODEN, PATRICIA A
2026 Market $548,227 Assessed $284,213 Taxable $232,802
2025 Tax Bill $3,793.88 Tax Savings with Exemptions $5,241.75

Copyright 2026 © Seminole County Property Appraiser | Privacy Statement | Accessibility/Terms of Use | Translate

Follow us on our socials