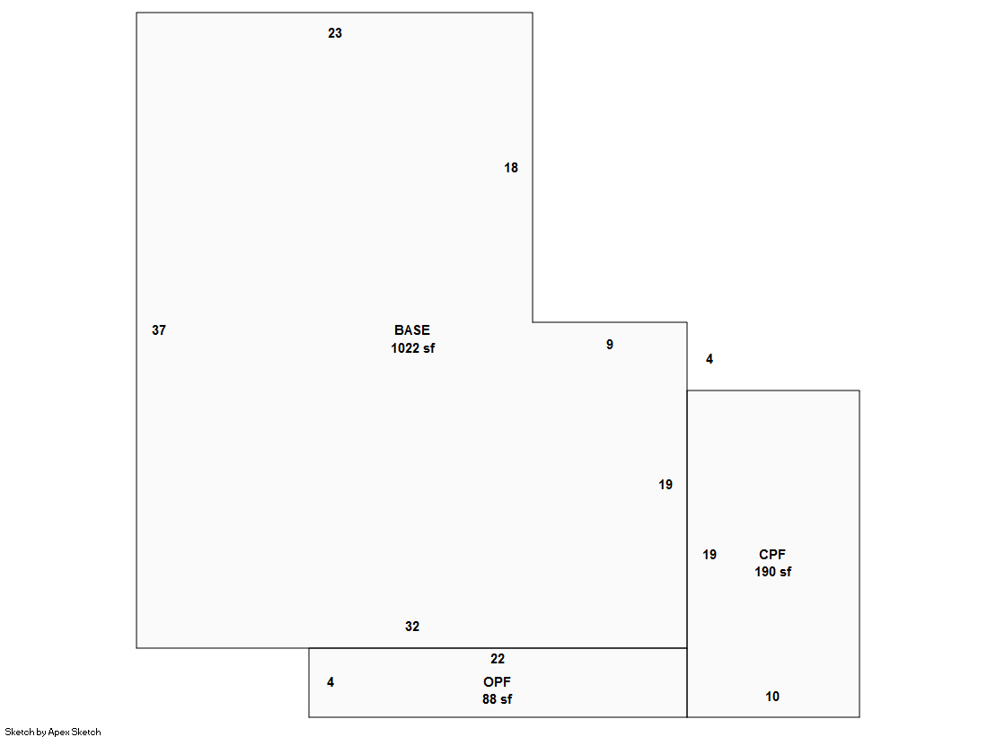
Seminole County Property Appraiser


279 ANCHOR RD CASSELBERRY, FL 32707
GULLEY, SHELLY A
2026 Market $135,028 Assessed $81,129 Taxable $29,718
2025 Tax Bill $649.06 Tax Savings with Exemptions $1,817.17

Copyright 2026 © Seminole County Property Appraiser | Privacy Statement | Accessibility/Terms of Use | Translate

Follow us on our socials