Seminole County Property Appraiser


615 PLUM LN ALTAMONTE SPRINGS, FL 32701
CLEVELAND, HAZEL L; HALL, KENNETH
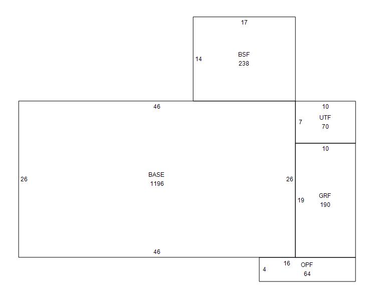
2026 Market $229,349 Assessed $65,692 Taxable $25,000
2025 Tax Bill $415.28 Tax Savings with Exemptions $2,753.90

Copyright 2026 © Seminole County Property Appraiser | Privacy Statement | Accessibility/Terms of Use | Translate

Follow us on our socials