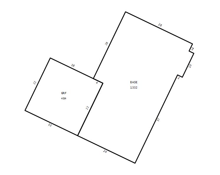
Seminole County Property Appraiser


2944 ASHWOOD CT APOPKA, FL 32703
SHILSON, AUDREY M
2026 Market $297,910 Assessed $297,910 Taxable $246,499
2025 Tax Bill $4,012.72 Tax Savings with Non-Hx Cap $69.60

Copyright 2026 © Seminole County Property Appraiser | Privacy Statement | Accessibility/Terms of Use | Translate

Follow us on our socials