Seminole County Property Appraiser


504 COLONNADES CV CASSELBERRY, FL 32707
MARTINEZ, LUIS; DOMINGUEZ, MARTHA
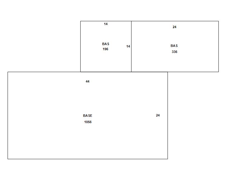
2026 Market $250,710 Assessed $186,557 Taxable $135,146
2025 Tax Bill $2,515.43 Tax Savings with Exemptions $2,084.71

Copyright 2026 © Seminole County Property Appraiser | Privacy Statement | Accessibility/Terms of Use | Translate

Follow us on our socials