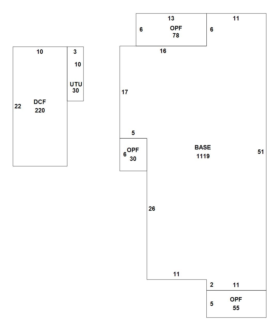
Seminole County Property Appraiser


206 CROWN OAKS WAY LONGWOOD, FL 32779
ANNEXY, MICHAEL A; ANNEXY, ASTRID C
2026 Market $115,584 Assessed $115,584 Taxable $115,584
2025 Tax Bill $1,976.34

Copyright 2026 © Seminole County Property Appraiser | Privacy Statement | Accessibility/Terms of Use | Translate

Follow us on our socials