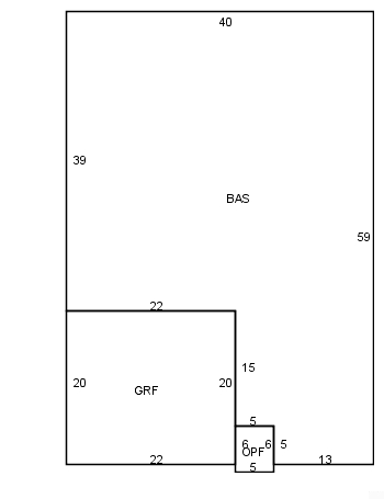
Seminole County Property Appraiser


2752 FALCON CREST PL LAKE MARY, FL 32746
SPLETTO, MITCHELL
2026 Market $355,539 Assessed $283,198 Taxable $231,787
2025 Tax Bill $3,213.21 Tax Savings with Exemptions $1,517.49

Copyright 2026 © Seminole County Property Appraiser | Privacy Statement | Accessibility/Terms of Use | Translate

Follow us on our socials