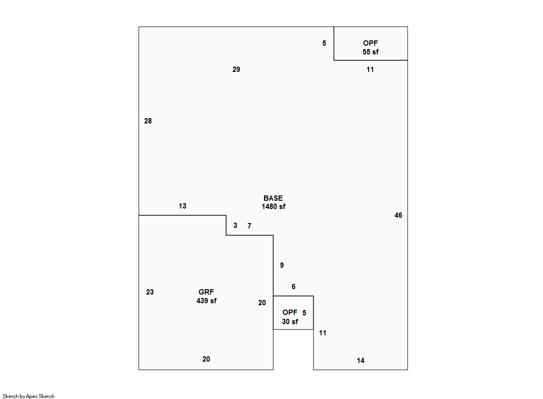
Seminole County Property Appraiser


886 DELFINO PL LAKE MARY, FL 32746
WALKER, KIMBERLY L
2026 Market $314,780 Assessed $188,646 Taxable $137,235
2025 Tax Bill $1,953.83 Tax Savings with Exemptions $2,514.66

Copyright 2026 © Seminole County Property Appraiser | Privacy Statement | Accessibility/Terms of Use | Translate

Follow us on our socials