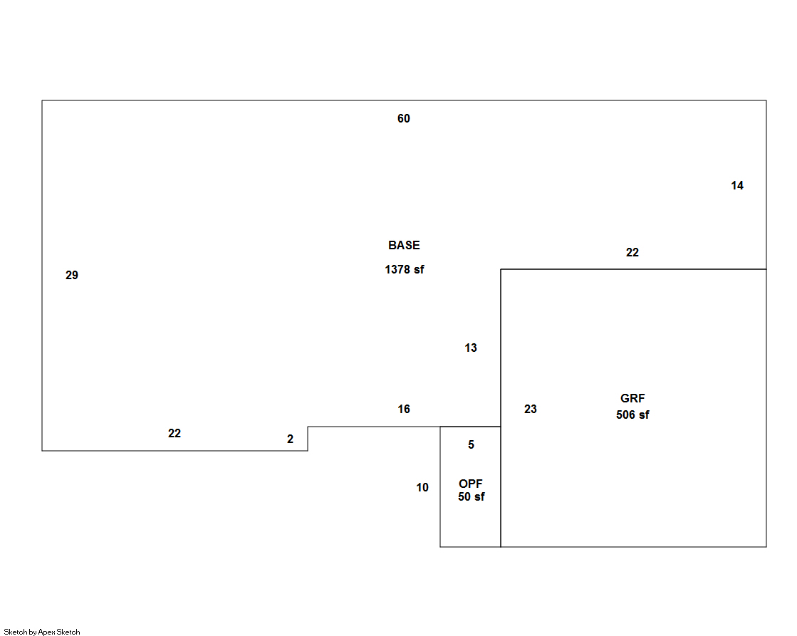
Seminole County Property Appraiser


721 SAILFISH RD WINTER SPRINGS, FL 32708
SUSAN J ENO TRUST
2026 Market $330,407 Assessed $330,407 Taxable $330,407
2025 Tax Bill $4,997.90 Tax Savings with Non-Hx Cap $284.70

Copyright 2026 © Seminole County Property Appraiser | Privacy Statement | Accessibility/Terms of Use | Translate

Follow us on our socials