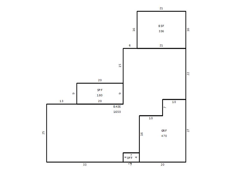
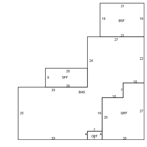
2025 COCHISE TRL CASSELBERRY, FL 32707
TAYLOR, DAVID W; TAYLOR, STACY L
2026 Market $408,763 Assessed $408,763 Taxable $358,041
2025 Tax Bill $6,675.21 Tax Savings with Exemptions $787.15

Copyright 2025 © Seminole County Property Appraiser | Privacy Statement | Accessibility/Terms of Use | Translate

Follow us on our socials

An unhandled error has occurred. Reload 🗙