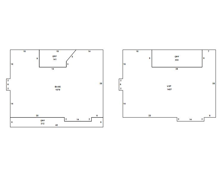
Seminole County Property Appraiser


1445 BIRD RD WINTER SPRINGS, FL 32708
XPI A PLUS REAL ESTATE INVESTMENTS LLC
2026 Market $785,608 Assessed $785,608 Taxable $785,608
2025 Tax Bill $12,741.62

Copyright 2026 © Seminole County Property Appraiser | Privacy Statement | Accessibility/Terms of Use | Translate

Follow us on our socials