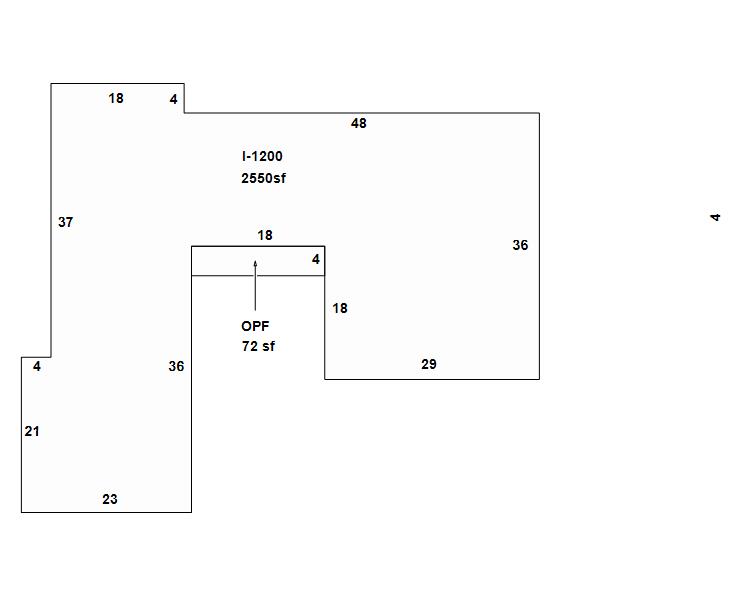
Seminole County Property Appraiser


1488 SEMINOLA BLVD CASSELBERRY, FL 32707
FLARENT INC
2026 Market $608,535 Assessed $569,870 Taxable $569,870
2025 Tax Bill $9,830.64 Tax Savings with Non-Hx Cap $1,014.61

Copyright 2026 © Seminole County Property Appraiser | Privacy Statement | Accessibility/Terms of Use | Translate

Follow us on our socials