Seminole County Property Appraiser


1495 SEMINOLA BLVD # 1001 CASSELBERRY, FL 32707
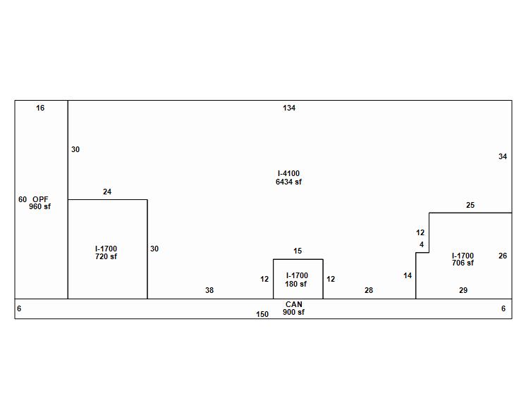
TERRAMAP PROPERTIES SEMINOLA LLC
2026 Market $800,753 Assessed $800,753 Taxable $800,753
2025 Tax Bill $12,916.22 Tax Savings with Non-Hx Cap $455.29

Copyright 2026 © Seminole County Property Appraiser | Privacy Statement | Accessibility/Terms of Use | Translate

Follow us on our socials