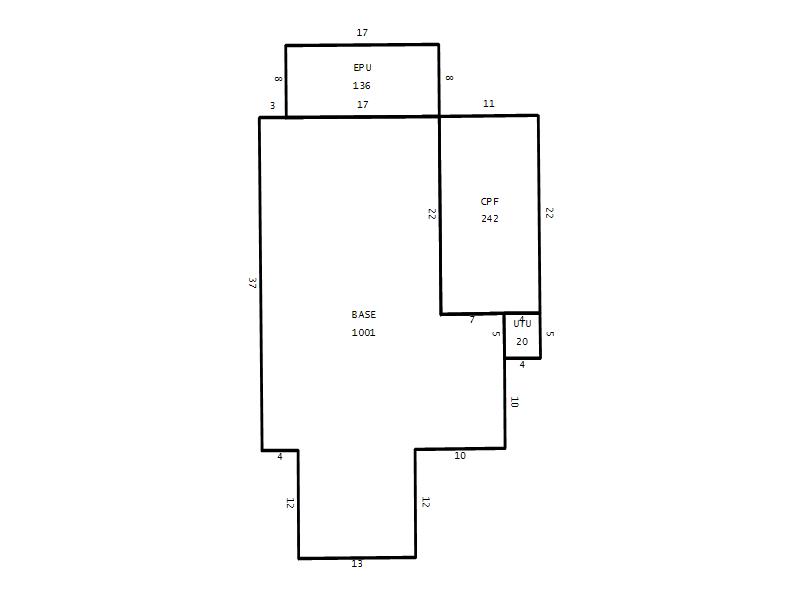
Seminole County Property Appraiser


1741 W 15TH ST SANFORD, FL 32771
CAMPBELL, ALEXIS
2026 Market $130,709 Assessed $130,709 Taxable $130,709
2025 Tax Bill $1,378.94

Copyright 2026 © Seminole County Property Appraiser | Privacy Statement | Accessibility/Terms of Use | Translate

Follow us on our socials