Seminole County Property Appraiser


101 N VIRGINIA AVE SANFORD, FL 32771
BELANGER, MICHAEL; BELANGER, DIANE
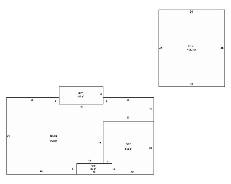
2026 Market $421,477 Assessed $244,439 Taxable $193,028
2025 Tax Bill $3,530.30 Tax Savings with Exemptions $3,970.05

Copyright 2026 © Seminole County Property Appraiser | Privacy Statement | Accessibility/Terms of Use | Translate

Follow us on our socials